К началу документа
Tacuma-Rezzo
На предыдущую страницуНа следующую страницу
Главная страница GMDEЗагрузить нединамическое оглавлениеЗагрузить динамическое оглавлениеПомощь



24. КОМБИНАЦИЯ ПРИБОРОВ

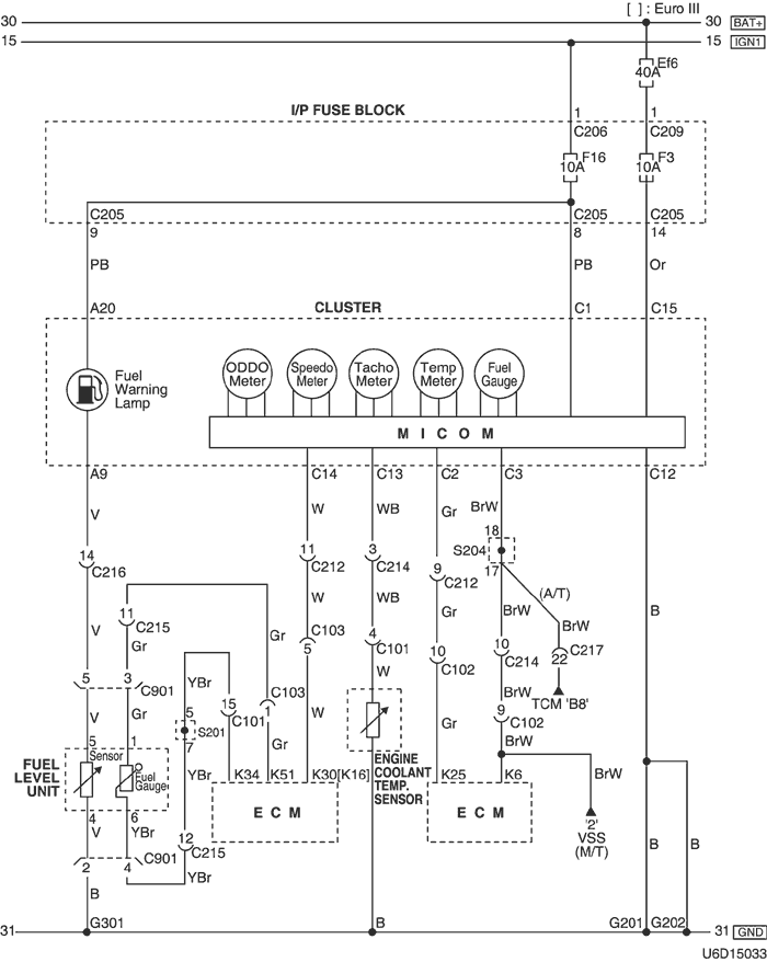
1) ЦЕПЬ СПИДОМЕТРА, ТОПЛИВНОГО РАСХОДОМЕРА, УКАЗАТЕЛЯ ТЕМПЕРАТ., ТАХОМЕТРА И СЧЕТЧИКА ПРОБЕГА : MR-140

U6D15033.png
Показать иллюстрациюПеревод текста в иллюстрациях


а. ИНФОРМАЦИЯ О РАЗЪЁМЕ

№ РАЗЪЁМА
(№ И ЦВЕТ КОНТАКТА)
СОЕДИНИТЕЛЬНЫЙ ЖГУТ ПРОВОДОВПОЛОЖЕНИЕ РАЗЪЁМА
С101 (контакт 15, черный) Двигатель - передняя часть кузова За левой фарой
С102 (контакт 16, черный) Двигатель - передняя часть кузова За левой фарой
С103 (контакт 6, серый) Передняя часть - двигатель Под блоком предохранителей в моторном отсеке
С205 (контакт 14, белый) Блок предохранителей на приборной панели - приборная панель Передняя часть блока предохранителей на приборной панели
C206 (контакт 3, коричневый) Блок предохранителей на приборной панели - приборная панель Передняя часть блока предохранителей на приборной панели
C209 (контакт 1, бесцветный) Блок предохранителей на приборной панели - передняя часть За блоком предохранителей на приборной панели
С212 (контакт 18, синий) Передняя часть - приборная панель Левая верхняя часть пространства для ног водителя
С214 (контакт 22, желтый) Передняя часть - приборная панель Левая верхняя часть пространства для ног водителя
С215 (контакт 16, белый) Пол - передняя часть Под блоком предохранителей на приборной панели
С216 (контакт 22, белый) Пол - приборная панель Под блоком предохранителей на приборной панели
С217 (контакт 22, белый) Приборная панель - контроллер КПП Центральная верхняя часть пространства для ног водителя
С901 (контакт 6, черный) Топливный бак - пол За топливным баком
S201 (бесцветн.) ПЕРЕДНЯЯ ЧАСТЬ Левая верхняя часть пространства для ног водителя
S204 (оранжев.) Приборная панель За приборной панелью в центре
G201 Приборная панель Над кронштейном блока предохранителей на приборной панели
G202 Приборная панель За пепельницей с правой стороны
G301 Пол Под полом в салоне автомобиля

б. УСЛОВНОЕ ОБОЗНАЧЕНИЕ & И НАХОЖДЕНИЕ НОМЕРА КОНТАКТА

U4D1P049.png
Показать иллюстрациюПеревод текста в иллюстрациях


в. РАСПОЛОЖЕНИЕ РАЗЪЁМОВ И СОЕДИНЕНИЙ МАССЫ

U4D12003.png
Показать иллюстрациюПеревод текста в иллюстрациях


U4D12006.png
Показать иллюстрациюПеревод текста в иллюстрациях


г. КОНТАКТНАЯ КОЛОДКА

s201 (mr-140)

U6D1S007.png
Показать иллюстрациюПеревод текста в иллюстрациях


s204

U5D1S008.png
Показать иллюстрациюПеревод текста в иллюстрациях


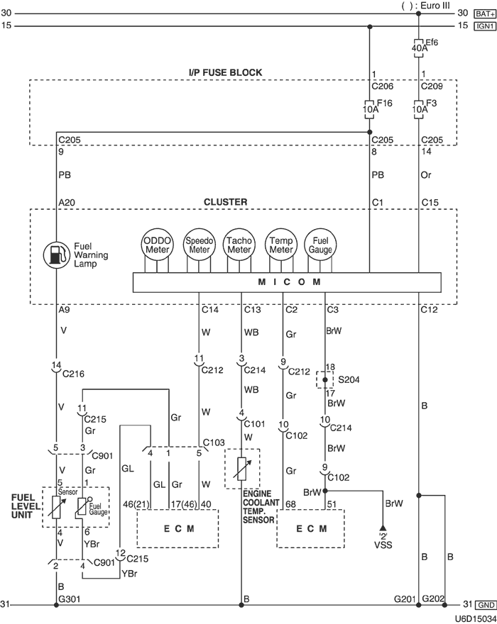
2) ЦЕПЬ СПИДОМЕТРА, ТОПЛИВНОГО РАСХОДОМЕРА, УКАЗАТЕЛЯ ТЕМПЕРАТ., ТАХОМЕТРА И СЧЕТЧИКА ПРОБЕГА : SIRIUS D4 (БОРТОВАЯ СИСТЕМА ДИАГНОСТИКИ)

U6D15034.png
Показать иллюстрациюПеревод текста в иллюстрациях


а. ИНФОРМАЦИЯ О РАЗЪЁМЕ

№ РАЗЪЁМА
(№ И ЦВЕТ КОНТАКТА)
СОЕДИНИТЕЛЬНЫЙ ЖГУТ ПРОВОДОВПОЛОЖЕНИЕ РАЗЪЁМА
С101 (контакт 15, черный) Двигатель - передняя часть кузова За левой фарой
С102 (контакт 16, черный) Двигатель - передняя часть кузова За левой фарой
С103 (контакт 6, серый) Передняя часть - двигатель Под блоком предохранителей в моторном отсеке
С205 (контакт 14, белый) Блок предохранителей на приборной панели - приборная панель Передняя часть блока предохранителей на приборной панели
C206 (контакт 3, коричневый) Блок предохранителей на приборной панели - приборная панель Передняя часть блока предохранителей на приборной панели
C209 (контакт 1, бесцветный) Блок предохранителей на приборной панели - передняя часть За блоком предохранителей на приборной панели
С212 (контакт 18, синий) Передняя часть - приборная панель Левая верхняя часть пространства для ног водителя
С214 (контакт 22, желтый) Передняя часть - приборная панель Левая верхняя часть пространства для ног водителя
С215 (контакт 16, белый) Пол - передняя часть Под блоком предохранителей на приборной панели
С216 (контакт 22, белый) Пол - приборная панель Под блоком предохранителей на приборной панели
С901 (контакт 6, черный) Топливный бак - пол За топливным баком
S204 (оранжев.) Приборная панель За приборной панелью в центре
G201 Приборная панель Над кронштейном блока предохранителей на приборной панели
G202 Приборная панель За пепельницей с правой стороны
G301 Пол Под полом в салоне автомобиля

б. УСЛОВНОЕ ОБОЗНАЧЕНИЕ & И НАХОЖДЕНИЕ НОМЕРА КОНТАКТА

U4D1P050.png
Показать иллюстрациюПеревод текста в иллюстрациях


в. РАСПОЛОЖЕНИЕ РАЗЪЁМОВ И СОЕДИНЕНИЙ МАССЫ

U4D12003.png
Показать иллюстрациюПеревод текста в иллюстрациях


U4D12006.png
Показать иллюстрациюПеревод текста в иллюстрациях


U4D12018.png
Показать иллюстрациюПеревод текста в иллюстрациях


г. КОНТАКТНАЯ КОЛОДКА

s204

U5D1S008.png
Показать иллюстрациюПеревод текста в иллюстрациях


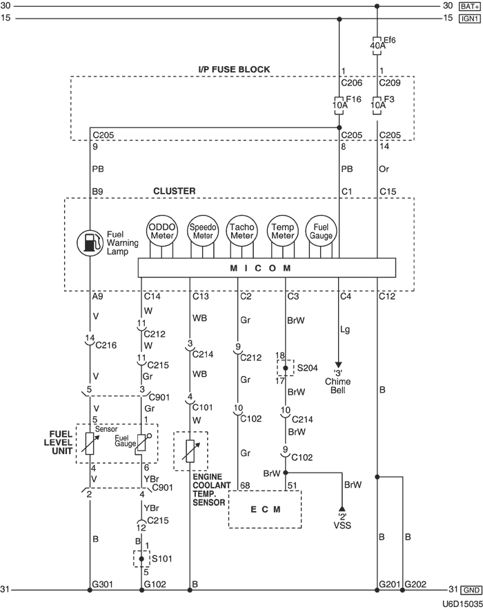
3) ЦЕПЬ СПИДОМЕТРА, ТОПЛИВНОГО РАСХОДОМЕРА, УКАЗАТЕЛЯ ТЕМПЕРАТ., ТАХОМЕТРА И СЧЕТЧИКА ПРОБЕГА : SIRIUS D4 (БЕЗ БОРТОВОЙ СИСТЕМЫ ДИАГНОСТИКИ)

U6D15035.png
Показать иллюстрациюПеревод текста в иллюстрациях


а. ИНФОРМАЦИЯ О РАЗЪЁМЕ

№ РАЗЪЁМА
(№ И ЦВЕТ КОНТАКТА)
СОЕДИНИТЕЛЬНЫЙ ЖГУТ ПРОВОДОВПОЛОЖЕНИЕ РАЗЪЁМА
С101 (контакт 15, черный) Двигатель - передняя часть кузова За левой фарой
С102 (контакт 16, черный) Двигатель - передняя часть кузова За левой фарой
С205 (контакт 14, белый) Блок предохранителей на приборной панели - приборная панель Передняя часть блока предохранителей на приборной панели
C206 (контакт 3, коричневый) Блок предохранителей на приборной панели - приборная панель Передняя часть блока предохранителей на приборной панели
C209 (контакт 1, бесцветный) Блок предохранителей на приборной панели - передняя часть За блоком предохранителей на приборной панели
С212 (контакт 18, синий) Передняя часть - приборная панель Левая верхняя часть пространства для ног водителя
С214 (контакт 22, желтый) Передняя часть - приборная панель Левая верхняя часть пространства для ног водителя
С215 (контакт 16, белый) Пол - передняя часть Под блоком предохранителей на приборной панели
С216 (контакт 22, белый) Пол - приборная панель Под блоком предохранителей на приборной панели
С901 (контакт 6, черный) Топливный бак - пол За топливным баком
S101 (бел.) ПЕРЕДНЯЯ ЧАСТЬ Внутренняя сторона блока предохранителей в моторном отсеке
S204 (оранжев.) Приборная панель За приборной панелью в центре
G102 ПЕРЕДНЯЯ ЧАСТЬ За левой фарой
G201 Приборная панель Над кронштейном блока предохранителей на приборной панели
G202 Приборная панель За пепельницей с правой стороны
G301 Пол Под полом в салоне автомобиля

б. УСЛОВНОЕ ОБОЗНАЧЕНИЕ & И НАХОЖДЕНИЕ НОМЕРА КОНТАКТА

U4D1P051.png
Показать иллюстрациюПеревод текста в иллюстрациях


в. РАСПОЛОЖЕНИЕ РАЗЪЁМОВ И СОЕДИНЕНИЙ МАССЫ

U4D12003.png
Показать иллюстрациюПеревод текста в иллюстрациях


U4D12006.png
Показать иллюстрациюПеревод текста в иллюстрациях


г. КОНТАКТНАЯ КОЛОДКА

s101 (sirius d4)

U6D1S001.png
Показать иллюстрациюПеревод текста в иллюстрациях


s204

U5D1S008.png
Показать иллюстрациюПеревод текста в иллюстрациях


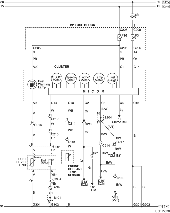
4) ЦЕПЬ СПИДОМЕТРА, ТОПЛИВНОГО РАСХОДОМЕРА, УКАЗАТЕЛЯ ТЕМПЕРАТ., ТАХОМЕТРА И СЧЕТЧИКА ПРОБЕГА : ITMS-6F

U6D15036.png
Показать иллюстрациюПеревод текста в иллюстрациях


а. ИНФОРМАЦИЯ О РАЗЪЁМЕ

№ РАЗЪЁМА
(№ И ЦВЕТ КОНТАКТА)
СОЕДИНИТЕЛЬНЫЙ ЖГУТ ПРОВОДОВПОЛОЖЕНИЕ РАЗЪЁМА
С101 (контакт 15, черный) Двигатель - передняя часть кузова За левой фарой
С102 (контакт 16, черный) Двигатель - передняя часть кузова За левой фарой
С205 (контакт 14, белый) Блок предохранителей на приборной панели - приборная панель Передняя часть блока предохранителей на приборной панели
C206 (контакт 3, коричневый) Блок предохранителей на приборной панели - приборная панель Передняя часть блока предохранителей на приборной панели
C209 (контакт 1, бесцветный) Блок предохранителей на приборной панели - передняя часть За блоком предохранителей на приборной панели
С212 (контакт 18, синий) Передняя часть - приборная панель Левая верхняя часть пространства для ног водителя
С214 (контакт 22, желтый) Передняя часть - приборная панель Левая верхняя часть пространства для ног водителя
С215 (контакт 16, белый) Пол - передняя часть Под блоком предохранителей на приборной панели
С216 (контакт 22, белый) Пол - приборная панель Под блоком предохранителей на приборной панели
С217 (контакт 22, белый) Приборная панель - контроллер КПП Центральная верхняя часть пространства для ног водителя
С220 (контакт 6, белый) Передняя часть - контроллер КПП Левая центральная часть пространства для ног водителя
С901 (контакт 6, черный) Топливный бак - пол За топливным баком
S101 (бел.) ПЕРЕДНЯЯ ЧАСТЬ Внутренняя сторона блока предохранителей в моторном отсеке
S204 (оранжев.) Приборная панель За приборной панелью в центре
G102 ПЕРЕДНЯЯ ЧАСТЬ За левой фарой
G201 Приборная панель Над кронштейном блока предохранителей на приборной панели
G202 Приборная панель За пепельницей с правой стороны
G301 Пол Под полом в салоне автомобиля

б. УСЛОВНОЕ ОБОЗНАЧЕНИЕ & И НАХОЖДЕНИЕ НОМЕРА КОНТАКТА

U4D1P052.png
Показать иллюстрациюПеревод текста в иллюстрациях


в. РАСПОЛОЖЕНИЕ РАЗЪЁМОВ И СОЕДИНЕНИЙ МАССЫ

U4D12003.png
Показать иллюстрациюПеревод текста в иллюстрациях


U4D12006.png
Показать иллюстрациюПеревод текста в иллюстрациях


г. КОНТАКТНАЯ КОЛОДКА

s101 (itms-6f)

U6D1S002.png
Показать иллюстрациюПеревод текста в иллюстрациях


s204

U5D1S008.png
Показать иллюстрациюПеревод текста в иллюстрациях


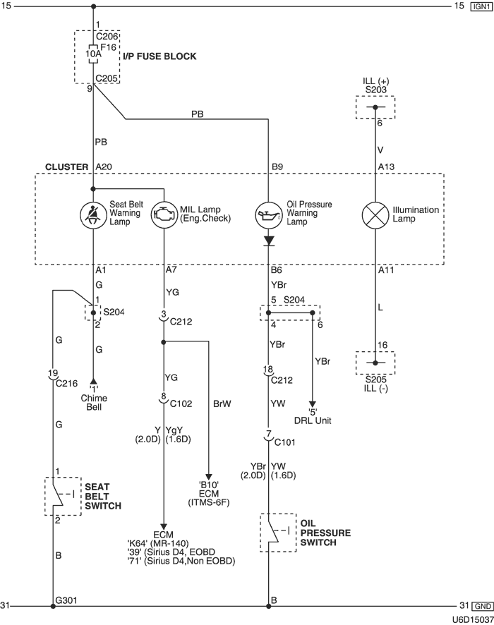
5) ЦЕПЬ КОНТРОЛЬНЫХ ЛАМП (РЕМНЕЙ БЕЗОПАСНОСТИ, ДАВЛЕНИЯ МАСЛА И ИНДИКАЦИИ НЕИСПРАВНОСТИ) И ЛАМПЫ ПОДСВЕТКИ

U6D15037.png
Показать иллюстрациюПеревод текста в иллюстрациях


а. ИНФОРМАЦИЯ О РАЗЪЁМЕ

№ РАЗЪЁМА
(№ И ЦВЕТ КОНТАКТА)
СОЕДИНИТЕЛЬНЫЙ ЖГУТ ПРОВОДОВПОЛОЖЕНИЕ РАЗЪЁМА
С101 (контакт 15, черный) Двигатель - передняя часть кузова За левой фарой
С102 (контакт 16, черный) Двигатель - передняя часть кузова За левой фарой
С205 (контакт 14, белый) Блок предохранителей на приборной панели - приборная панель Передняя часть блока предохранителей на приборной панели
C206 (контакт 3, коричневый) Блок предохранителей на приборной панели - приборная панель Передняя часть блока предохранителей на приборной панели
С212 (контакт 18, синий) Передняя часть - приборная панель Левая верхняя часть пространства для ног водителя
С216 (контакт 22, белый) Пол - приборная панель Под блоком предохранителей на приборной панели
S203 (белый) Приборная панель Центральная верхняя часть пространства для ног водителя
S204 (оранжев.) Приборная панель За приборной панелью в центре
S205 (оранжев.) Приборная панель За приборной панелью в центре
G301 Пол Под полом в салоне автомобиля

б. УСЛОВНОЕ ОБОЗНАЧЕНИЕ & И НАХОЖДЕНИЕ НОМЕРА КОНТАКТА

U5D1P017.png
Показать иллюстрациюПеревод текста в иллюстрациях


в. РАСПОЛОЖЕНИЕ РАЗЪЁМОВ И СОЕДИНЕНИЙ МАССЫ

U4D12006.png
Показать иллюстрациюПеревод текста в иллюстрациях


U4D12019.png
Показать иллюстрациюПеревод текста в иллюстрациях


г. КОНТАКТНАЯ КОЛОДКА

s203

U5D1S007.png
Показать иллюстрациюПеревод текста в иллюстрациях


s204

U5D1S008.png
Показать иллюстрациюПеревод текста в иллюстрациях


s205

U5D1S009.png
Показать иллюстрациюПеревод текста в иллюстрациях


6) ЦЕПЬ КОНТРОЛЬНЫХ ЛАМП (ЗАРЯДКИ, СТОЯНОЧНОГО ТОРМОЗА, АБС, ПОДУШКИ БЕЗОПАСНОСТИ, РЕЖИМА МОЩНОСТИ И РЕЖИМА ПОДДЕРЖАНИЯ, ГОРЯЧЕГО РЕЖИМА)

U5D15064.png
Показать иллюстрациюПеревод текста в иллюстрациях


а. ИНФОРМАЦИЯ О РАЗЪЁМЕ

№ РАЗЪЁМА
(№ И ЦВЕТ КОНТАКТА)
СОЕДИНИТЕЛЬНЫЙ ЖГУТ ПРОВОДОВПОЛОЖЕНИЕ РАЗЪЁМА
С101 (контакт 15, черный) Двигатель - передняя часть кузова За левой фарой
С102 (контакт 16, черный) Двигатель - передняя часть кузова За левой фарой
С203 (контакт 22, белый) Блок предохранителей на приборной панели - приборная панель Передняя часть блока предохранителей на приборной панели
С205 (контакт 14, белый) Блок предохранителей на приборной панели - приборная панель Передняя часть блока предохранителей на приборной панели
C206 (контакт 3, коричневый) Блок предохранителей на приборной панели - приборная панель Передняя часть блока предохранителей на приборной панели
С207 (контакт 22, белый) Блок предохранителей на приборной панели - передняя часть За блоком предохранителей на приборной панели
С210 (контакт 18, белый) Блок предохранителей на приборной панели - пол За блоком предохранителей на приборной панели
С212 (контакт 18, синий) Передняя часть - приборная панель Левая верхняя часть пространства для ног водителя
С214 (контакт 22, желтый) Передняя часть - приборная панель Левая верхняя часть пространства для ног водителя
С217 (контакт 22, белый) Приборная панель - контроллер КПП Центральная верхняя часть пространства для ног водителя
С218 (контакт 4, белый) Подушка безопасности - приборная панель Правая верхняя часть пространства для ног водителя
S101 (бел.) ПЕРЕДНЯЯ ЧАСТЬ Внутренняя сторона блока предохранителей в моторном отсеке
G102 ПЕРЕДНЯЯ ЧАСТЬ За левой фарой

б. УСЛОВНОЕ ОБОЗНАЧЕНИЕ & И НАХОЖДЕНИЕ НОМЕРА КОНТАКТА

U5D1P018.png
Показать иллюстрациюПеревод текста в иллюстрациях


в. РАСПОЛОЖЕНИЕ РАЗЪЁМОВ И СОЕДИНЕНИЙ МАССЫ

U4D12006.png
Показать иллюстрациюПеревод текста в иллюстрациях


U4D12019.png
Показать иллюстрациюПеревод текста в иллюстрациях


г. КОНТАКТНАЯ КОЛОДКА

s101 (itms-6f)

U6D1S002.png
Показать иллюстрациюПеревод текста в иллюстрациях


s101 (mr-140, sirius d4)

U6D1S001.png
Показать иллюстрациюПеревод текста в иллюстрациях


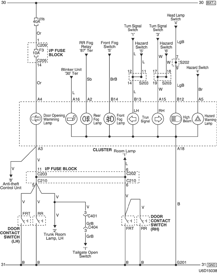
7) ЦЕПЬ КОНТРОЛЬНЫХ ЛАМП (УКАЗАТЕЛЕЙ ПОВОРОТА, ПЕРЕДНИХ/ЗАДНИХ ПРОТИВОТУМАННЫХ ФАР, ОТКРЫТИЯ ДВЕРИ И ВКЛЮЧЕНИЯ ДАЛЬНЕГО СВЕТА ФАР)

U6D15038.png
Показать иллюстрациюПеревод текста в иллюстрациях


а. ИНФОРМАЦИЯ О РАЗЪЁМЕ

№ РАЗЪЁМА
(№ И ЦВЕТ КОНТАКТА)
СОЕДИНИТЕЛЬНЫЙ ЖГУТ ПРОВОДОВПОЛОЖЕНИЕ РАЗЪЁМА
С202 (контакт 6, белый) Блок предохранителей на приборной панели - крыша Передняя часть блока предохранителей на приборной панели
С203 (контакт 22, белый) Блок предохранителей на приборной панели - приборная панель Передняя часть блока предохранителей на приборной панели
С205 (контакт 14, белый) Блок предохранителей на приборной панели - приборная панель Передняя часть блока предохранителей на приборной панели
C209 (контакт 1, бесцветный) Блок предохранителей на приборной панели - передняя часть За блоком предохранителей на приборной панели
С210 (контакт 18, белый) Блок предохранителей на приборной панели - пол За блоком предохранителей на приборной панели
С401 (контакт 10, белый) Задняя дверь - пол За боковым стеклом в задней части кузова
С404 (контакт 8, белый) Задняя дверь - задняя дверь, допол. С левой стороны под задней дверью за задним фонарем
S202 (оранжев.) Приборная панель За приборной панелью с левой стороны
S203 (белый) Приборная панель Центральная верхняя часть пространства для ног водителя
G201 Приборная панель Над кронштейном блока предохранителей на приборной панели

б. УСЛОВНОЕ ОБОЗНАЧЕНИЕ & И НАХОЖДЕНИЕ НОМЕРА КОНТАКТА

U5D1P019.png
Показать иллюстрациюПеревод текста в иллюстрациях


в. РАСПОЛОЖЕНИЕ РАЗЪЁМОВ И СОЕДИНЕНИЙ МАССЫ

U4D12006.png
Показать иллюстрациюПеревод текста в иллюстрациях


U4D12019.png
Показать иллюстрациюПеревод текста в иллюстрациях


г. КОНТАКТНАЯ КОЛОДКА

s202

U5D1S006.png
Показать иллюстрациюПеревод текста в иллюстрациях


s203

U5D1S007.png
Показать иллюстрациюПеревод текста в иллюстрациях


8) ИНДИКАТОР И ПЕРЕКЛЮЧАТЕЛЬ ПАРКОВКИ-ЗАДНЕГО ХОДА-НЕЙТРАЛИ-ПРИВОДА

U5D15066.png
Показать иллюстрациюПеревод текста в иллюстрациях


а. ИНФОРМАЦИЯ О РАЗЪЁМЕ

№ РАЗЪЁМА
(№ И ЦВЕТ КОНТАКТА)
СОЕДИНИТЕЛЬНЫЙ ЖГУТ ПРОВОДОВПОЛОЖЕНИЕ РАЗЪЁМА
С203 (контакт 22, белый) Блок предохранителей на приборной панели - приборная панель Передняя часть блока предохранителей на приборной панели
C206 (контакт 3, коричневый) Блок предохранителей на приборной панели - приборная панель Передняя часть блока предохранителей на приборной панели
С217 (контакт 22, белый) Приборная панель - контроллер КПП Центральная верхняя часть пространства для ног водителя

б. УСЛОВНОЕ ОБОЗНАЧЕНИЕ & И НАХОЖДЕНИЕ НОМЕРА КОНТАКТА

U4D1P056.png
Показать иллюстрациюПеревод текста в иллюстрациях


в. РАСПОЛОЖЕНИЕ РАЗЪЁМОВ И СОЕДИНЕНИЙ МАССЫ

U4D12003.png
Показать иллюстрациюПеревод текста в иллюстрациях


U4D12006.png
Показать иллюстрациюПеревод текста в иллюстрациях


U4D12009.png
Показать иллюстрациюПеревод текста в иллюстрациях


На предыдущую страницуНа следующую страницу


https://vnx.su/ 🛠 Руководства по ремонту и эксплуатации для автомобилей

Поиск по сайту

Остались вопросы или пожелания? Пишите на почту: support@vnx.su

Карта Сайта