К началу документа
Nubira-Lacetti
На предыдущую страницуНа следующую страницу
Главная страница GMDEЗагрузить нединамическое оглавлениеЗагрузить динамическое оглавлениеПомощь



27. ABS (ANTILOCK BRAKE SYSTEM)

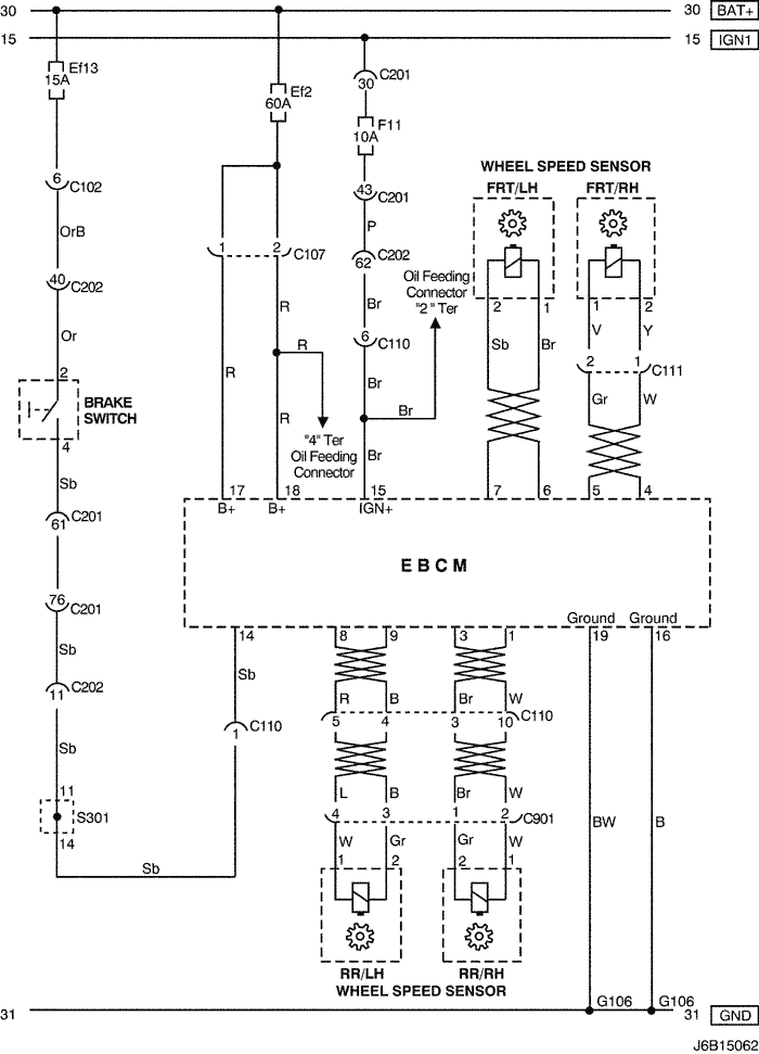
1) power supply, wheel speed sensor & brake switch circuit

J6B15062.png
Показать иллюстрациюПеревод текста в иллюстрациях


а. ИНФОРМАЦИЯ О РАЗЪЁМЕ

№ РАЗЪЁМА
(№ И ЦВЕТ КОНТАКТА)
СОЕДИНИТЕЛЬНЫЙ ЖГУТ ПРОВОДОВПОЛОЖЕНИЕ РАЗЪЁМА
C102 (11 Pin, White) Body – Engine Fuse Block Engine Fuse Block
C107 (2 Pin, White) ABS – Engine Fuse Block Engine Fuse Block
C110 (12 Pin, White) ABS – Body Below Engine Fuse Block
C111 (2 Pin, Black) ABS – Front Below Engine Fuse Block
C201 (76 Pin, Black) I.P – I.P Fuse Block I.P Fuse Block
C202 (89 Pin, White) I.P – Body Left CO-Driver Leg Room
C901 (4 Pin, Black) RR. ABS – Body Center Rear Cross member
S301 (Blue) Body Left CO-Driver Leg Room
G106 ABS Below EBCM

б. УСЛОВНОЕ ОБОЗНАЧЕНИЕ & И НАХОЖДЕНИЕ НОМЕРА КОНТАКТА

J5B1P063.png
Показать иллюстрациюПеревод текста в иллюстрациях


в. РАСПОЛОЖЕНИЕ РАЗЪЁМОВ И СОЕДИНЕНИЙ МАССЫ

J3B12014.png
Показать иллюстрациюПеревод текста в иллюстрациях


J5B32004.png
Показать иллюстрациюПеревод текста в иллюстрациях


г. КОНТАКТНАЯ КОЛОДКА

s301 (notch back)

J3B1S012.png
Показать иллюстрациюПеревод текста в иллюстрациях


s301 (hatch back)

J3D1S008.png
Показать иллюстрациюПеревод текста в иллюстрациях


s301 (station wagon)

J5B1S008.png
Показать иллюстрациюПеревод текста в иллюстрациях


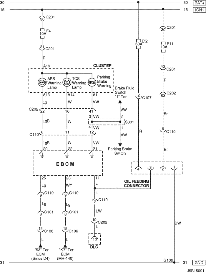
2) oil feeding connector, warning (abs, tcs & brake) lamp & dlc circuit

J5B15091.png
Показать иллюстрациюПеревод текста в иллюстрациях


а. ИНФОРМАЦИЯ О РАЗЪЁМЕ

№ РАЗЪЁМА
(№ И ЦВЕТ КОНТАКТА)
СОЕДИНИТЕЛЬНЫЙ ЖГУТ ПРОВОДОВПОЛОЖЕНИЕ РАЗЪЁМА
C101 (21 Pin, White) Body – Engine Fuse Block Engine Fuse Block
C106 (20 Pin, White) Engine – Engine Fuse Block Engine Fuse Block
C107 (2 Pin, White) ABS – Engine Fuse Block Engine Fuse Block
C110 (12 Pin, White) ABS – Body Below Engine Fuse Block
C201 (76 Pin, Black) I.P – I.P Fuse Block I.P Fuse Block
C202 (89 Pin, White) I.P – Body Left CO-Driver Leg Room
S301 (Blue) Body Left CO-Driver Leg Room
G106 ABS Below EBCM

б. УСЛОВНОЕ ОБОЗНАЧЕНИЕ & И НАХОЖДЕНИЕ НОМЕРА КОНТАКТА

J5B1P064.png
Показать иллюстрациюПеревод текста в иллюстрациях


в. РАСПОЛОЖЕНИЕ РАЗЪЁМОВ И СОЕДИНЕНИЙ МАССЫ

J5B12006.png
Показать иллюстрациюПеревод текста в иллюстрациях


J3B12014.png
Показать иллюстрациюПеревод текста в иллюстрациях


г. КОНТАКТНАЯ КОЛОДКА

s301 (notch back)

J3B1S012.png
Показать иллюстрациюПеревод текста в иллюстрациях


s301 (hatch back)

J3D1S008.png
Показать иллюстрациюПеревод текста в иллюстрациях


s301 (station wagon)

J5B1S008.png
Показать иллюстрациюПеревод текста в иллюстрациях


На предыдущую страницуНа следующую страницу


https://vnx.su/ 🛠 Руководства по ремонту и эксплуатации для автомобилей

Поиск по сайту

Остались вопросы или пожелания? Пишите на почту: support@vnx.su

Карта Сайта