Cruze
   
GMDE Start Page Load static TOC Load dynamic TOC Help?
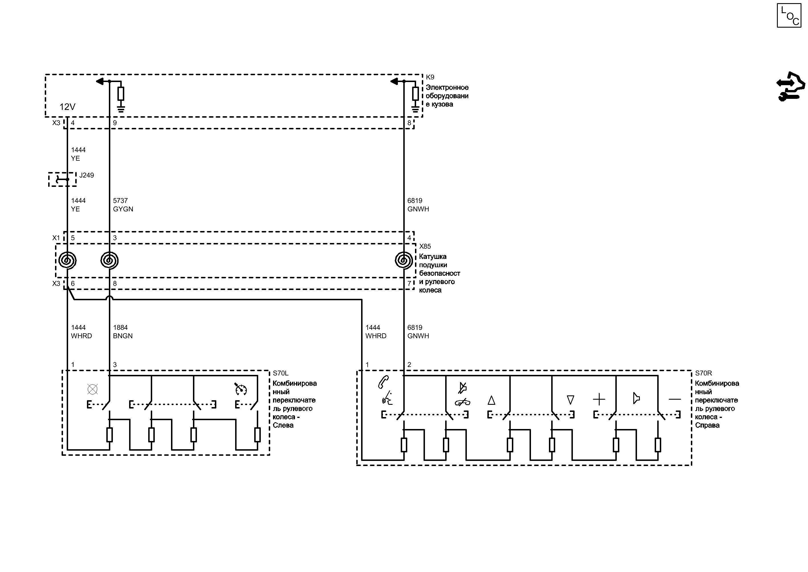
Органы управления рулевым колесом


            |                         |            
2202892RU.png


Display graphic

Display graphic

Компоненты
k9Электронное оборудование кузоваs70rКомбинированный переключатель рулевого колеса - Справа
s70lКомбинированный переключатель рулевого колеса - Слеваx85Катушка подушки безопасности рулевого колеса
Разъемы
j249Жгут проводов панели приборовx85 (x1)Катушка подушки безопасности рулевого колеса x1
k9 (x3)Электронное оборудование кузова x3x85 (x3)Катушка подушки безопасности рулевого колеса x3
Цветовые коды
bngnКоричневый-ЗеленыйwhrdБелый-Красный
gnwhЗеленый-БелыйyeЖелтый
gygnСерый-Зеленый
9
X3 Электронное оборудование кузова X3

Расположение деталей (узлов) Трехмерная схема жгутов
Сигнал переключателя "интервал больше/меньше" адаптивной системы автоматического...
GYGN Серый-Зеленый
3
Опорный сигнал 12 вольт
YE Желтый
5
4
X1 Катушка подушки безопасности рулевого колеса X1

Внешний вид разъема и ремонт
J249 Жгут проводов панели приборов

Электрическая схема Круиз-контроль
YE Желтый
Резистивная цепочка рулевого колеса - сигнал № 2
GNWH Зеленый-Белый
4
8
S70L Комбинированный переключатель рулевого колеса - Слева
X85 Катушка подушки безопасности рулевого колеса

Расположение деталей (узлов) Трехмерная схема жгутов
K9 Электронное оборудование кузова

Расположение деталей (узлов) Трехмерная схема жгутов
Опорный сигнал 12 вольт
8
3
6
Опорный сигнал 12 вольт
WHRD Белый-Красный
1
X3 Катушка подушки безопасности рулевого колеса X3

Расположение деталей (узлов) Трехмерная схема жгутов
Внешний вид разъема и ремонт
1
WHRD Белый-Красный
Резистивная цепочка рулевого колеса - сигнал № 2
GNWH Зеленый-Белый
2
S70R Комбинированный переключатель рулевого колеса - Справа
7
Сигнал
Сигнал
Круиз-контроль, сигнал переключателя "Задать/Накатом/Возобновление/Ускорение"
BNGN Коричневый-Зеленый
Справочные данные по контроллерам

Справочные данные по контроллерам
Перечень основных электрических компонентов

Перечень основных электрических компонентов
   


https://vnx.su/ 🛠 Руководства по ремонту и эксплуатации для автомобилей

Поиск по сайту

Остались вопросы или пожелания? Пишите на почту: support@vnx.su

Карта Сайта