To the top of the document
Tacuma-Rezzo
To Previous PageTo Next Page
GMDE Start PageLoad static TOCLoad dynamic TOCHelp?



3. ECM (ENGINE CONTROL MODULE) - 1.6D (SIRIUS D4)

1) battery power supply, ground, ei system & ckp sensor circuit

U5D15009.png
Display graphicTranslations of text in graphics


a. CONNECTOR INFORMATION

connector no
(pin no, color)
connecting wiring harnessconnector position
C101(15 Pin, Black) Engine – Front Behind the Left Headlamp
C102 (16 pin, Black) Engine – Front Behind the Left Headlamp
C103 (6 Pin, Gray) Front – Engine Under the Engine Fuse Block
C206 (3 Pin, Brown) I/P Fuse Block – IP Front the I/P Fuse Block
C208 (14 Pin, White) I/P Fuse Block – Front Behind the I/P Fuse Block
C215 (16 Pin, White) Floor – Front Under the I/P Fuse Block
S101 (White) Front Inside the Engine Fuse Block
S201 (Colorless) Front Left Upper the Driver Leg Room
G104 Engine Under the Intake Manifold

b. CONNECTOR IDENTIFICATION SYMBOL & PIN NUMBER POSITION

U4D1P078.png
Display graphicTranslations of text in graphics


c. POSITION OF CONNECTORS AND GROUNDS

U5D12005.png
Display graphicTranslations of text in graphics


d. SPLICE PACK

s101

U4D1S022.png
Display graphicTranslations of text in graphics


s201 (sirius d4)

U4D1S007.png
Display graphicTranslations of text in graphics


2) fuel pump & injector circuit

U5D15010.png
Display graphicTranslations of text in graphics


a. CONNECTOR INFORMATION

connector no
(pin no, color)
connecting wiring harnessconnector position
C101(15 Pin, Black) Engine – Front Behind the Left Headlamp
C102 (16 pin, Black) Engine – Front Behind the Left Headlamp
C206 (3 Pin, Brown) I/P Fuse Block – IP Front the I/P Fuse Block
C208 (14 Pin, White) I/P Fuse Block – Front Behind the I/P Fuse Block
C215 (16 Pin, White) Floor – Front Under the I/P Fuse Block
C901 (6 Pin, Black) Fuel Tank – Floor Behind the Fuel Tank
S102 (Black) Engine Rear Intake Manifold
G301 Floor Under the Driver Room Floor

b. CONNECTOR IDENTIFICATION SYMBOL & PIN NUMBER POSITION

U4D1P079.png
Display graphicTranslations of text in graphics


c. POSITION OF CONNECTORS AND GROUNDS

U5D12005.png
Display graphicTranslations of text in graphics


U4D12018.png
Display graphicTranslations of text in graphics


d. SPLICE PACK

s102 (sirius d4)

U4D1S004.png
Display graphicTranslations of text in graphics


3) mtia & sensor (vr, 02, map, iat, acp, ect & knock) circuit

U5D15011.png
Display graphicTranslations of text in graphics


a. CONNECTOR INFORMATION

connector no
(pin no, color)
connecting wiring harnessconnector position
C101(15 Pin, Black) Engine – Front Behind the Left Headlamp
C102 (16 pin, Black) Engine – Front Behind the Left Headlamp
C215 (16 Pin, White) Floor – Front Under the I/P Fuse Block
S102 (Black) Engine Rear Intake Manifold
S201 (Colorless) Front Left Upper the Driver Leg Room

b. CONNECTOR IDENTIFICATION SYMBOL & PIN NUMBER POSITION

U4D1P080.png
Display graphicTranslations of text in graphics


c. POSITION OF CONNECTORS AND GROUNDS

U5D12005.png
Display graphicTranslations of text in graphics


d. SPLICE PACK

s201 (sirius d4)

U4D1S004.png
Display graphicTranslations of text in graphics


s201 (sirius d4)

U4D1S007.png
Display graphicTranslations of text in graphics


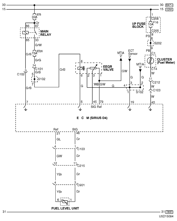
4) eegr valve & fuel gauge circuit (eobd)

U5D15084.png
Display graphicTranslations of text in graphics


a. CONNECTOR INFORMATION

connector no
(pin no, color)
connecting wiring harnessconnector position
C101(15 Pin, Black) Engine – Front Behind the Left Headlamp
C102 (16 pin, Black) Engine – Front Behind the Left Headlamp
C103 (6 Pin, Gray) Front – Engine Under the Engine Fuse Block
C205 (14 Pin, White) I/P Fuse Block – IP Front the I/P Fuse Block
C206 (3 Pin, Brown) I/P Fuse Block – IP Front the I/P Fuse Block
C212 (18 Pin, Blue) Front – IP Left Upper the Driver Leg Room
C215 (16 Pin, White) Floor – Front Under the I/P Fuse Block
C901 (6 Pin, Black) Fuel Tank – Floor Behind the Fuel Tank
S102 (Black) Engine Rear Intake Manifold
S202 (Orange) IP Rear Right Instrument Panel

b. CONNECTOR IDENTIFICATION SYMBOL & PIN NUMBER POSITION

U4D1P081.png
Display graphicTranslations of text in graphics


c. POSITION OF CONNECTORS AND GROUNDS

U4D12018.png
Display graphicTranslations of text in graphics


d. SPLICE PACK

s102 (sirius d4)

U5D1S015.png
Display graphicTranslations of text in graphics


s202

U5D1S015.png
Display graphicTranslations of text in graphics


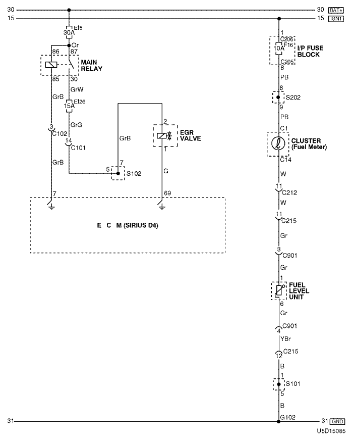
5) egr valve & fuel gauge circuit (non eobd)

U5D15085.png
Display graphicTranslations of text in graphics


a. CONNECTOR INFORMATION

connector no
(pin no, color)
connecting wiring harnessconnector position
C101(15 Pin, Black) Engine – Front Behind the Left Headlamp
C102 (16 pin, Black) Engine – Front Behind the Left Headlamp
C205 (14 Pin, White) I/P Fuse Block – IP Front the I/P Fuse Block
C206 (3 Pin, Brown) I/P Fuse Block – IP Front the I/P Fuse Block
C212 (18 Pin, Blue) Front – IP Left Upper the Driver Leg Room
C215 (16 Pin, White) Floor – Front Under the I/P Fuse Block
C901 (6 Pin, Black) Fuel Tank – Floor Behind the Fuel Tank
S101 (White) Front Inside the Engine Fuse Block
S102 (Black) Engine Rear Intake Manifold
S202 (Orange) IP Rear Right Instrument Panel
G101 Battery Behind the Battery

b. CONNECTOR IDENTIFICATION SYMBOL & PIN NUMBER POSITION

U4D1P082.png
Display graphicTranslations of text in graphics


c. POSITION OF CONNECTORS AND GROUNDS

U5D12005.png
Display graphicTranslations of text in graphics


d. SPLICE PACK

s101

U4D1S022.png
Display graphicTranslations of text in graphics


s102 (sirius d4)

U4D1S004.png
Display graphicTranslations of text in graphics


s202

U5D1S015.png
Display graphicTranslations of text in graphics


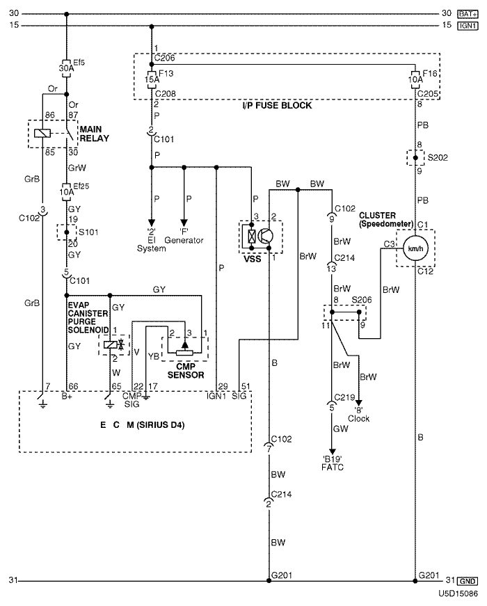
6) evap canister purge solenoid, vss & cmp sensor circuit

U5D15086.png
Display graphicTranslations of text in graphics


a. CONNECTOR INFORMATION

connector no
(pin no, color)
connecting wiring harnessconnector position
C101(15 Pin, Black) Engine – Front Behind the Left Headlamp
C102 (16 pin, Black) Engine – Front Behind the Left Headlamp
C205 (14 Pin, White) I/P Fuse Block – IP Front the I/P Fuse Block
C206 (3 Pin, Brown) I/P Fuse Block – IP Front the I/P Fuse Block
C208 (14 Pin, White) I/P Fuse Block – Front Behind the I/P Fuse Block
C214 (26 pin, Yellow) Front – IP Left Upper the Driver Leg Room
C219 (15 Pin, White) IP – FATC Upper the Evaporator Housing
S101 (White) Front Inside the Engine Fuse Block
S202 (Orange) IP Rear Right Instrument Panel
S206 (Violet) IP Rear Left Instrument Panel
G201 IP Rear Right Instrument Panel

b. CONNECTOR IDENTIFICATION SYMBOL & PIN NUMBER POSITION

U5D1P032.png
Display graphicTranslations of text in graphics


c. POSITION OF CONNECTORS AND GROUNDS

U5D12005.png
Display graphicTranslations of text in graphics


U4D12006.png
Display graphicTranslations of text in graphics


d. SPLICE PACK

s101

U4D1S022.png
Display graphicTranslations of text in graphics


s206

U5D1S018.png
Display graphicTranslations of text in graphics


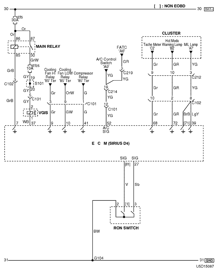
7) cluster, power steering pressure switch & ron switch circuit

U5D15087.png
Display graphicTranslations of text in graphics


a. CONNECTOR INFORMATION

connector no
(pin no, color)
connecting wiring harnessconnector position
C101(15 Pin, Black) Engine – Front Behind the Left Headlamp
C102 (16 pin, Black) Engine – Front Behind the Left Headlamp
C212 (18 Pin, Blue) Front – IP Left Upper the Driver Leg Room
C214 (26 Pin, Yellow) Front – IP Left Upper the Driver Leg Room
C219 (15 Pin, White) IP – FATC Upper the Evaporator Housing
S101 (White) Front Inside the Engine Fuse Block
G104 Engine Under the Intake Manifold

b. CONNECTOR IDENTIFICATION SYMBOL & PIN NUMBER POSITION

U4D1P084.png
Display graphicTranslations of text in graphics


c. POSITION OF CONNECTORS AND GROUNDS

U4D12024.png
Display graphicTranslations of text in graphics


U5D12005.png
Display graphicTranslations of text in graphics


d. SPLICE PACK

s101

U4D1S022.png
Display graphicTranslations of text in graphics


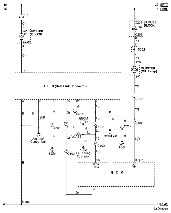
8) dlc (data link connector) circuit

U5D15088.png
Display graphicTranslations of text in graphics


a. CONNECTOR INFORMATION

connector no
(pin no, color)
connecting wiring harnessconnector position
C102 (16 pin, Black) Engine – Front Behind the Left Headlamp
C205 (14 Pin, White) I/P Fuse Block – IP Front the I/P Fuse Block
C206 (3 Pin, Brown) I/P Fuse Block – IP Front the I/P Fuse Block
C209 (1 Pin, Colorless) I/P Fuse Block – Front Behind the I/P Fuse Block
C212 (18 Pin, Blue) Front – IP Left Upper the Driver Leg Room
C214 (26 pin, Yellow) Front – IP Left Upper the Driver Leg Room
C217 (22 Pin, White) IP – TCM Center Upper the Driver Leg Room
C218 (4 Pin, White) Air Bag – IP Right Upper the Driver Leg Room
S202 (Orange) IP Rear Right Instrument Panel
G202 IP Rear Right Ashtray

b. CONNECTOR IDENTIFICATION SYMBOL & PIN NUMBER POSITION

U5D1P033.png
Display graphicTranslations of text in graphics


c. POSITION OF CONNECTORS AND GROUNDS

U4D12025.png
Display graphicTranslations of text in graphics


U5D12005.png
Display graphicTranslations of text in graphics


d. SPLICE PACK

s202

U5D1S015.png
Display graphicTranslations of text in graphics


sm
To Previous PageTo Next Page


https://vnx.su/ 🛠 Руководства по ремонту и эксплуатации для автомобилей

Поиск по сайту

Остались вопросы или пожелания? Пишите на почту: support@vnx.su

Карта Сайта