To the top of the document
Tacuma-Rezzo
To Previous PageTo Next Page
GMDE Start PageLoad static TOCLoad dynamic TOCHelp?



23. CLUSTER

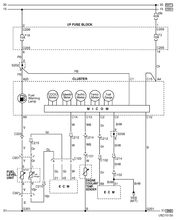
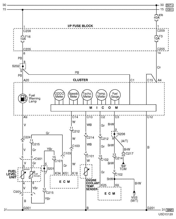
1) speedometer, fuel meter, temp. METER, TACHOMETER & ODOMETER CIRCUIT (MR-140)

U5D15129.png
Display graphicTranslations of text in graphics


a. CONNECTOR INFORMATION

connector no
(pin no, color)
connecting wiring harnessconnector position
C101 (15 Pin, Black) Engine – Front Behind the Left Headlamp
C102 (16 Pin, Black) Engine – Front Behind the Left Headlamp
C103 (6 Pin, Gray) Front – Engine Under the Engine Fuse Block
C205 (14 Pin, White) I/P Fuse Block – IP Front the I/P Fuse Block
C206 (3 Pin, Brown) I/P Fuse Block – IP Front the I/P Fuse Block
C209 (1 Pin, Colorless) I/P Fuse Block – Front Behind the I/P Fuse Block
C212 (18 Pin, Blue) Front – IP Left Upper the Driver Leg Room
C214 (26 Pin, Yellow) Front – IP Left Upper the Driver Leg Room
C215 (16 Pin, White) Floor – Front Under the I/P Fuse Block
C217 (22 Pin, White) IP – TCM Center Upper the Driver Leg Room
C224 (14 Pin, White) IP – Floor Under the Door Lock Unit
C901 (6 Pin, Black) Fuel Tank – Floor Behind the Fuel Tank
S201 (Colorless) Front Left Upper the Driver Leg Room
S202 (Orange) IP Rear Right Instrument Panel
S206 (Violet) IP Rear Left Instrument Panel
G201 IP Rear Right Instrument Panel
G301 Floor Under the Driver Room Floor

b. CONNECTOR IDENTIFICATION SYMBOL & PIN NUMBER POSITION

U4D1P123.png
Display graphicTranslations of text in graphics


c. POSITION OF CONNECTORS AND GROUNDS

U4D12006.png
Display graphicTranslations of text in graphics


U4D12018.png
Display graphicTranslations of text in graphics


d. SPLICE PACK

s201 (mr-140)

U4D1S006.png
Display graphicTranslations of text in graphics


s202

U5D1S015.png
Display graphicTranslations of text in graphics


s206

U5D1S018.png
Display graphicTranslations of text in graphics


2) speedometer, fuel meter, temp. METER, TACHOMETER & ODOMETER CIRCUIT (SIRIUS D4, EOBD)

U5D15130.png
Display graphicTranslations of text in graphics


a. CONNECTOR INFORMATION

connector no
(pin no, color)
connecting wiring harnessconnector position
C101 (15 Pin, Black) Engine – Front Behind the Left Headlamp
C102 (16 Pin, Black) Engine – Front Behind the Left Headlamp
C103 (6 Pin, Gray) Front – Engine Under the Engine Fuse Block
C205 (14 Pin, White) I/P Fuse Block – IP Front the I/P Fuse Block
C206 (3 Pin, Brown) I/P Fuse Block – IP Front the I/P Fuse Block
C209 (1 Pin, Colorless) I/P Fuse Block – Front Behind the I/P Fuse Block
C212 (18 Pin, Blue) Front – IP Left Upper the Driver Leg Room
C214 (26 Pin, Yellow) Front – IP Left Upper the Driver Leg Room
C215 (16 Pin, White) Floor – Front Under the I/P Fuse Block
C224 (14 Pin, White) IP – Floor Under the Door Lock Unit
C901 (6 Pin, Black) Fuel Tank – Floor Behind the Fuel Tank
S202 (Orange) IP Rear Right Instrument Panel
S206 (Violet) IP Rear Left Instrument Panel
G201 IP Rear Right Instrument Panel
G301 Floor Under the Driver Room Floor

b. CONNECTOR IDENTIFICATION SYMBOL & PIN NUMBER POSITION

U5D1P049.png
Display graphicTranslations of text in graphics


c. POSITION OF CONNECTORS AND GROUNDS

U4D12024.png
Display graphicTranslations of text in graphics


U4D12006.png
Display graphicTranslations of text in graphics


d. SPLICE PACK

s202

U5D1S015.png
Display graphicTranslations of text in graphics


s206

U5D1S018.png
Display graphicTranslations of text in graphics


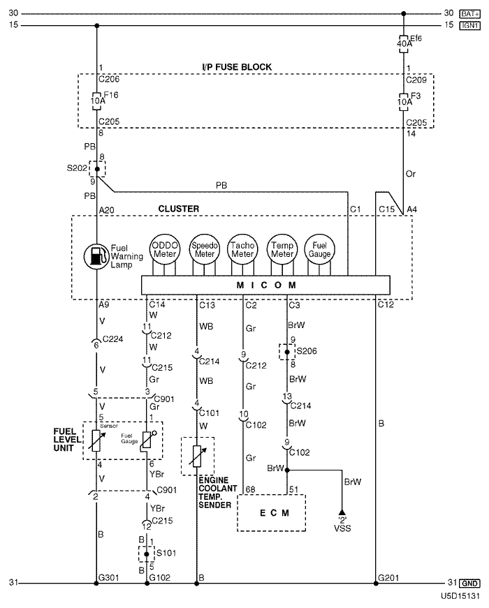
3) speedometer, fuel meter, temp. METER, TACHOMETER & ODOMETER CIRCUIT (SIRIUS D4, NON EOBD)

U5D15131.png
Display graphicTranslations of text in graphics


a. CONNECTOR INFORMATION

connector no
(pin no, color)
connecting wiring harnessconnector position
C101 (15 Pin, Black) Engine – Front Behind the Left Headlamp
C102 (16 Pin, Black) Engine – Front Behind the Left Headlamp
C205 (14 Pin, White) I/P Fuse Block – IP Front the I/P Fuse Block
C206 (3 Pin, Brown) I/P Fuse Block – IP Front the I/P Fuse Block
C209 (1 Pin, Colorless) I/P Fuse Block – Front Behind the I/P Fuse Block
C212 (18 Pin, Blue) Front – IP Left Upper the Driver Leg Room
C214 (26 Pin, Yellow) Front – IP Left Upper the Driver Leg Room
C215 (16 Pin, White) Floor – Front Under the I/P Fuse Block
C224 (14 Pin, White) IP – Floor Under the Door Lock Unit
C901 (6 Pin, Black) Fuel Tank – Floor Behind the Fuel Tank
S101 (White) Front Inside the Engine Fuse Block
S202 (Orange) IP Rear Right Instrument Panel
S206 (Violet) IP Rear Left Instrument Panel
G102 Front Behind the Left Headlamp
G201 IP Rear Right Instrument Panel
G301 Floor Under the Driver Room Floor

b. CONNECTOR IDENTIFICATION SYMBOL & PIN NUMBER POSITION

U4D1P125.png
Display graphicTranslations of text in graphics


c. POSITION OF CONNECTORS AND GROUNDS

U4D12024.png
Display graphicTranslations of text in graphics


U4D12006.png
Display graphicTranslations of text in graphics


d. SPLICE PACK

s101

U4D1S022.png
Display graphicTranslations of text in graphics


s202

U5D1S015.png
Display graphicTranslations of text in graphics


s206

U5D1S018.png
Display graphicTranslations of text in graphics


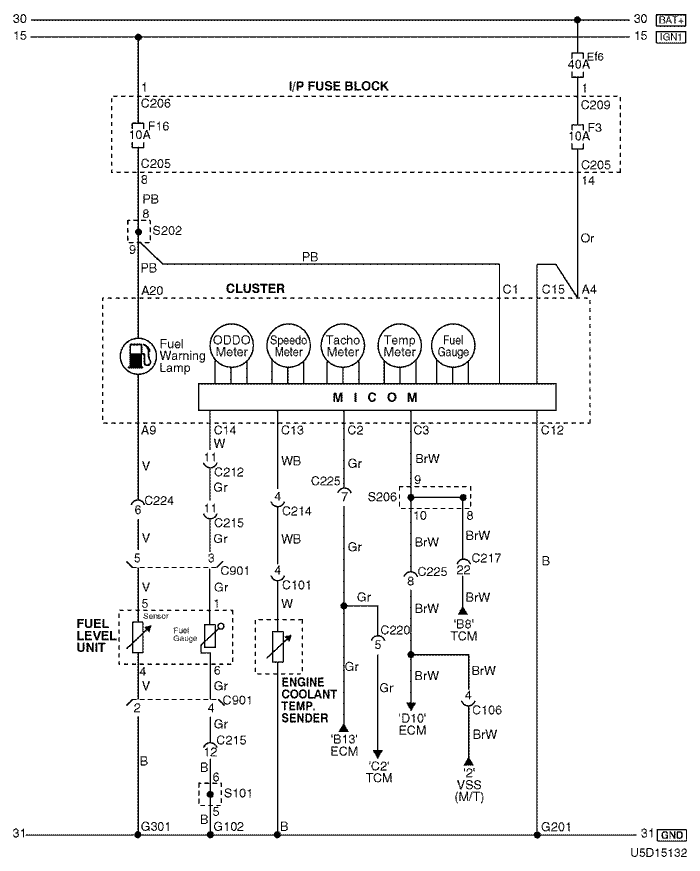
4) speedometer, fuel meter, temp. METER, TACHOMETER & ODOMETER CIRCUIT (ITMS-6F)

U5D15132.png
Display graphicTranslations of text in graphics


a. CONNECTOR INFORMATION

connector no
(pin no, color)
connecting wiring harnessconnector position
C101 (15 Pin, Black) Engine – Front Behind the Left Headlamp
C106 (16 Pin, Black) Engine – ECM Right Upper The Driver Leg Room
C205 (14 Pin, White) I/P Fuse Block – IP Front the I/P Fuse Block
C206 (3 Pin, Brown) I/P Fuse Block – IP Front the I/P Fuse Block
C209 (1 Pin, Colorless) I/P Fuse Block – Front Behind the I/P Fuse Block
C212 (18 Pin, Blue) Front – IP Left Upper the Driver Leg Room
C214 (26 Pin, Yellow) Front – IP Left Upper the Driver Leg Room
C215 (16 Pin, White) Floor – Front Under the I/P Fuse Block
C217 (22 Pin, White) IP – TCM Center Upper the Driver Leg Room
C220 (6 Pin, White) ECM - TCM Right Center the Driver Leg Room (ITMS–6F)
C224 (14 Pin, White) IP – Floor Under the Door Lock Unit
C225 (8 pin, White) IP – ECM Center Upper The Driver Leg Room
C901 (6 Pin, Black) Fuel Tank – Floor Behind the Fuel Tank
S101 (White) Front Inside the Engine Fuse Block
S202 (Orange) IP Rear Right Instrument Panel
S206 (Violet) IP Rear Left Instrument Panel
G102 Front Behind the Left Headlamp
G201 IP Rear Right Instrument Panel
G301 Floor Under the Driver Room Floor

b. CONNECTOR IDENTIFICATION SYMBOL & PIN NUMBER POSITION

U4D1P126.png
Display graphicTranslations of text in graphics


c. POSITION OF CONNECTORS AND GROUNDS

U4D12024.png
Display graphicTranslations of text in graphics


d. SPLICE PACK

s101

U4D1S022.png
Display graphicTranslations of text in graphics


s202

U5D1S015.png
Display graphicTranslations of text in graphics


s206

U5D1S018.png
Display graphicTranslations of text in graphics


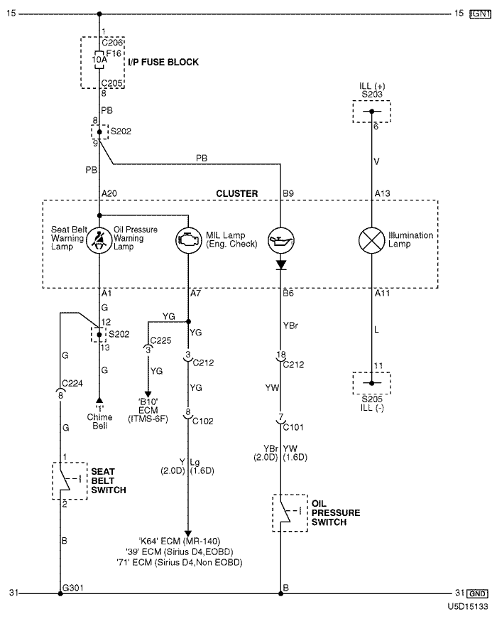
5) warning (seat belt, oil pressure & mil) lamp & illumination lamp circuit

U5D15133.png
Display graphicTranslations of text in graphics


a. CONNECTOR INFORMATION

connector no
(pin no, color)
connecting wiring harnessconnector position
C101 (15 Pin, Black) Engine – Front Behind the Left Headlamp
C102 (16 Pin, Black) Engine – Front Behind the Left Headlamp
C205 (14 Pin, White) I/P Fuse Block – IP Front the I/P Fuse Block
C206 (3 Pin, Brown) I/P Fuse Block – IP Front the I/P Fuse Block
C212 (18 Pin, Blue) Front – IP Left Upper the Driver Leg Room
C224 (14 Pin, White) IP – Floor Under the Door Lock Unit
C225 (8 pin, White) IP – ECM Center Upper The Driver Leg Room
S202 (Orange) IP Rear Right Instrument Panel
S203 (Orange) IP Rear Center Instrument Panel
S205 (Orange) IP Rear Center Instrument Panel
G301 Floor Under the Driver Room Floor

b. CONNECTOR IDENTIFICATION SYMBOL & PIN NUMBER POSITION

U5D1P050.png
Display graphicTranslations of text in graphics


c. POSITION OF CONNECTORS AND GROUNDS

U4D12029.png
Display graphicTranslations of text in graphics


U4D12006.png
Display graphicTranslations of text in graphics


d. SPLICE PACK

s202

U5D1S015.png
Display graphicTranslations of text in graphics


s203

U5D1S016.png
Display graphicTranslations of text in graphics


s205

U5D1S017.png
Display graphicTranslations of text in graphics


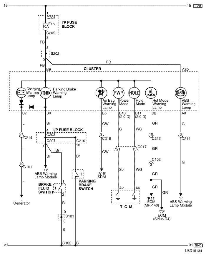
6) warning (charging, parking brake, abs, air-bag, power mode, hold mode & hot mode) lamp circuit

U5D15134.png
Display graphicTranslations of text in graphics


a. CONNECTOR INFORMATION

connector no
(pin no, color)
connecting wiring harnessconnector position
C101 (15 Pin, Black) Engine – Front Behind the Left Headlamp
C102 (16 Pin, Black) Engine – Front Behind the Left Headlamp
C203 (22 Pin, White) I/P Fuse Block – IP Front the I/P Fuse Block
C205 (14 Pin, White) I/P Fuse Block – IP Front the I/P Fuse Block
C206 (3 Pin, Brown) I/P Fuse Block – IP Front the I/P Fuse Block
C207 (22 Pin, White) I/P Fuse Block – Front Behind the I/P Fuse Block
C210 (18 Pin, White) I/P Fuse Block – Floor Behind the I/P Fuse Block
C212 (18 Pin, Blue) Front – IP Left Upper the Driver Leg Room
C214 (26 Pin, Yellow) Front – IP Left Upper the Driver Leg Room
C217 (22 Pin, White) IP – TCM Center Upper the Driver Leg Room
C218 (4 Pin, White) Air Bag – IP Right Upper the Driver Leg Room
S101 (White) Front Inside the Engine Fuse Block
S202 (Orange) IP Rear Right Instrument Panel
G102 Front Behind the Left Headlamp

b. CONNECTOR IDENTIFICATION SYMBOL & PIN NUMBER POSITION

U5D1P051.png
Display graphicTranslations of text in graphics


c. POSITION OF CONNECTORS AND GROUNDS

U4D12029.png
Display graphicTranslations of text in graphics


U4D12006.png
Display graphicTranslations of text in graphics


d. SPLICE PACK

s101

U4D1S022.png
Display graphicTranslations of text in graphics


s202

U5D1S015.png
Display graphicTranslations of text in graphics


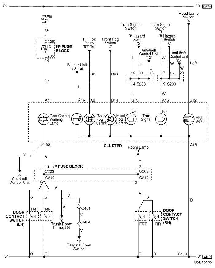
7) indicator (turn signal, front/rear fog, door opening warning & high beam) lamp circuit

U5D15135.png
Display graphicTranslations of text in graphics


a. CONNECTOR INFORMATION

connector no
(pin no, color)
connecting wiring harnessconnector position
C202 (6 Pin, White) I/P Fuse Block – Roof Front the I/P Fuse Block
C203 (22 Pin, White) I/P Fuse Block – IP Front the I/P Fuse Block
C205 (14 Pin, White) I/P Fuse Block – IP Front the I/P Fuse Block
C209 (1 Pin, Colorless) I/P Fuse Block – Front Behind the I/P Fuse Block
C210 (18 Pin, White) I/P Fuse Block – Floor Behind the I/P Fuse Block
C401 (10 Pin, White) Tailgate – Floor Behind the Rear Quarter Glass
C404 (8 Pin, White) Tailgate – Tailgate, AUX Left Under Tailgate Behind the Tail Lamp
S203 (Orange) IP Rear Center Instrument Panel
G201 IP Rear Right Instrument Panel

b. CONNECTOR IDENTIFICATION SYMBOL & PIN NUMBER POSITION

U5D1P052.png
Display graphicTranslations of text in graphics


c. POSITION OF CONNECTORS AND GROUNDS

U4D12029.png
Display graphicTranslations of text in graphics


U4D12006.png
Display graphicTranslations of text in graphics


d. SPLICE PACK

s203

U5D1S016.png
Display graphicTranslations of text in graphics


8) indicator & prnd switch

U5D15066.png
Display graphicTranslations of text in graphics


a. CONNECTOR INFORMATION

connector no
(pin no, color)
connecting wiring harnessconnector position
C203 (22 Pin, White) I/P Fuse Block – IP Front the I/P Fuse Block
C206 (3 Pin, Brown) I/P Fuse Block – IP Front the I/P Fuse Block
C217 (22 Pin, White) IP – TCM Center Upper the Driver Leg Room

b. CONNECTOR IDENTIFICATION SYMBOL & PIN NUMBER POSITION

U4D1P130.png
Display graphicTranslations of text in graphics


c. POSITION OF CONNECTORS AND GROUNDS

U4D12024.png
Display graphicTranslations of text in graphics


U4D12006.png
Display graphicTranslations of text in graphics


U4D12009.png
Display graphicTranslations of text in graphics


sm
To Previous PageTo Next Page


https://vnx.su/ 🛠 Руководства по ремонту и эксплуатации для автомобилей

Поиск по сайту

Остались вопросы или пожелания? Пишите на почту: support@vnx.su

Карта Сайта